Helle, moderne 4-Zimmer-Wohnung

Objekt-Nr. 32508344 in 40489 Düsseldorf - Kaiserswerth

Ansprechpartner

Heike Hollmann

Telefon: 0211-403444


  • Kaufpreis
    560.000 €
  • Hausgeld
    357 €
  • Wohnfläche
    ca. 107 m²

Beschreibung

Diese helle, außergewöhnlich gut geschnittene Wohnung befindet sich in der 1. Etage einer gepflegten Wohnanlage, fußläufig zum Kaiserswerther Zentrum.
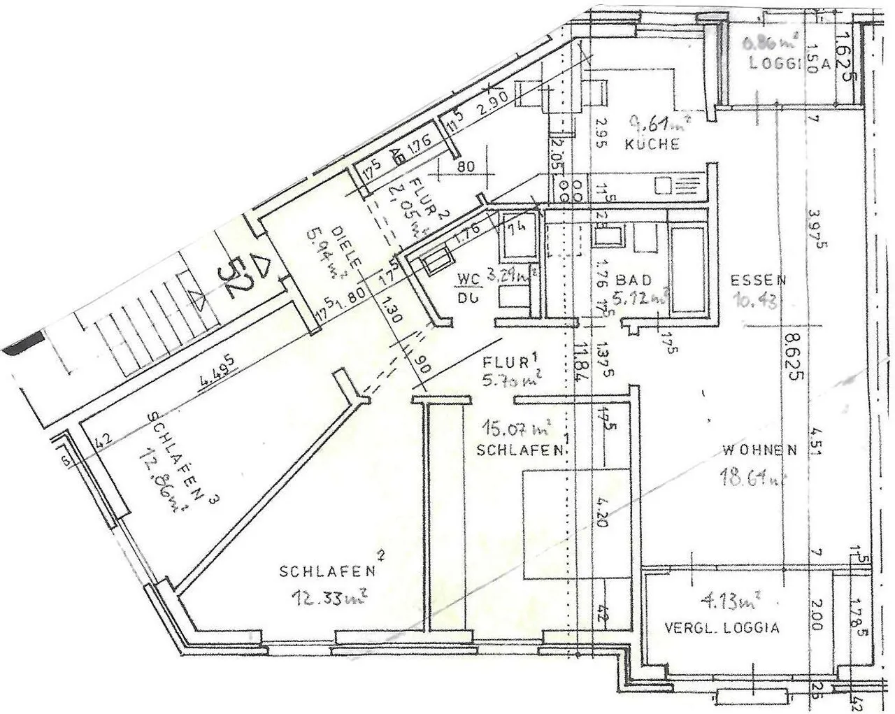
Die Wohnung verfügt über vier Zimmer, ein Wannen- und ein Duschbad, eine separate Küche, einen Balkon und einen Wintergarten. Die Bäder wurden kürzlich renoviert. Alle Zimmer verfügen über bodentiefe Fenster und sind ebenso wie die Bäder vom Flur aus zu erreichen. Helligkeit und Großzügigkeit bestimmen die Atmosphäre dieser Wohnung.
Dem Wohnzimmer vorgelagert ist ein gemütlicher Wintergarten, zur anderen Seite der Wohnung befindet sich ein sonniger Balkon. In allen Zimmern wurde Laminatboden verlegt.
Mit der Wohnung wird ein Tiefgaragenplatz verkauft, dieser ist im Preis inkludiert. Im Haus befinden sich ein Wasch- und ein Fahrradkeller.

Ausstattung

4 Zimmer
Wannenbad
Duschbad
separate Küche
bodentiefe Fenster
Rollläden
Laminatboden
Balkon
Wintergarten
Warmwasser über Durchlauferhitzer
Keller
Waschraum und Trockenraum
Tiefgaragenplatz inklusive

Lagebeschreibung

Kaiserswerth ist Düsseldorfs ältester und traditionsreichster Stadtteil und der einzige mit einem historischen Ortskern, mittelalterlichen Baudenkmälern und einer echten Kaiserpfalz. Direkt am Rhein mit herrlichen Rad- und Wanderwegen ist Kaiserswerth ein attraktives, gutbürgerliches Wohngebiet und zugleich beliebtes Ausflugsziel am Wochenende – mit vielen Events das ganze Jahr über. Hier in diesem gefragten Umfeld liegt diese Immobilie in einer guten Wohnlage. Mit Geschäften im Ortskern und dem Einkaufszentrum Klemensviertel, vielfältigen Gastronomiebetrieben, zwei Gymnasien, der Internationalen Schule, der Diakonie und anderen Einrichtungen hält Kaiserswerth einladende Angebote und Dienstleistungen bereit.
Hier lässt es sich gut leben, shoppen und natürlich auch speisen. Vom Gourmet-Restaurant bis zur Imbissbude, vom Café bis zum Bistro ist alles vorhanden.

Durch die alte und neue Bundesstraße B8 und B8n hat man eine hervorragende Verbindung zu vielen Autobahnen. Der Flughafen Düsseldorf ist nur wenige Minuten entfernt. Eine gute öffentliche Personennahverkehrsanbindung an die umliegenden Städte ist durch U- und S-Bahnen sowie durch mehrere Buslinien gewährleistet.

Sonstiges

Maklerprovision: Bei Abschluss eines notariellen Kaufvertrages erhalten wir ein Erfolgshonorar. Der Käuferanteil beträgt 3% des Kaufpreises zzgl. der gesetzlichen Mehrwertsteuer.
Die Weitergabe dieses Angebotes an Dritte ist ohne unsere ausdrückliche Genehmigung nicht erlaubt. Bei Zuwiderhandlung haften Sie für die uns entgangene Maklercourtage. Dieser Nachweis gilt für ein Jahr. In dieser Zeit sind Sie uns gegenüber auch dann provisionspflichtig, wenn Sie dieses Objekt über einen anderen Makler oder direkt vom Eigentümer erwerben.

Für Angaben unseres Auftraggebers übernehmen wir keine Haftung.
Wir weisen darauf hin, dass die Grundrisse und ggf. Lageplan nicht maßstabsgetreu sind.

Ausstattung

Anzahl Balkone 1
Anzahl Schlafzimmer 2
Anzahl Zimmer 4
Baujahr 1991
Befeuerungsart Gas
Boden Laminat
Energieausweis Ausstellungsdatum 2018-01-26
Energieausweistyp Verbrauch
Energieausweis gültig bis 2028-01-25
Energieausweis 2014
Endenergieverbrauch [kWh/(m²*a)] 138
Energieeffizienzklasse E
Lage im Objekt (Etage) 1
Gäste-WC
Heizungsart Zentralheizung
Provisionspflichtig
Stellplätze 1
Stellplatzart Freiplatz
Unterkellert
verfügbar ab nach Vereinbarung
Zustand gepflegt

Sonstiges

Käuferprovision: 3.57 %


Objekt-Nr. 32508344 in 40489 Düsseldorf - Kaiserswerth